ライフデザイン・カバヤ株式会社
【建築関係者必見!】木造によるビルが当たり前の時代に本格突入!?
木造ビル建築の新たな可能性を探るライフデザイン・カバヤ、『CLT鉄骨ハイブリッド構法』により福山支店を着工!
岡山の住宅メーカーであるライフデザイン・カバヤ株式会社(代表取締役:野津基弘)は、 10月23日、 CLT(注1)を使用した3階建て自社事務所ビルを着工する。 (注1:CLT(Cross Laminated Timber)とは、 ひき板を並べた層を、 板の繊維方向が層ごとに直交するように重ねて接着した大判のパネルのこと。 )竣工予定は2018年3月となっている。
今回着工する3階建て自社事務所ビルは、 CLTと重量鉄骨のハイブリッド構造となっていて、 現状ではCLTパネルのみで構成することが難しいデザインの確立を目指した建物だ。 CLTパネルで面材耐力壁と水平構面を構成し、 鉄骨梁を採用することにより、 強固な接合部と施工性の向上を実現。 これにより、 2階打ち合わせスペースである12.5mのボックス空間をV字柱のみで支え、 大きく跳ねだした6mのキャンチレバーを可能にしている。 また、 内装では複数個所でCLTを現しとして活用。 無機質で味気がなくなりがちなオフィスの内観に、 木ならではの柔らかな表情を与えている。
《今回着工したライフデザイン・カバヤ福山支店》
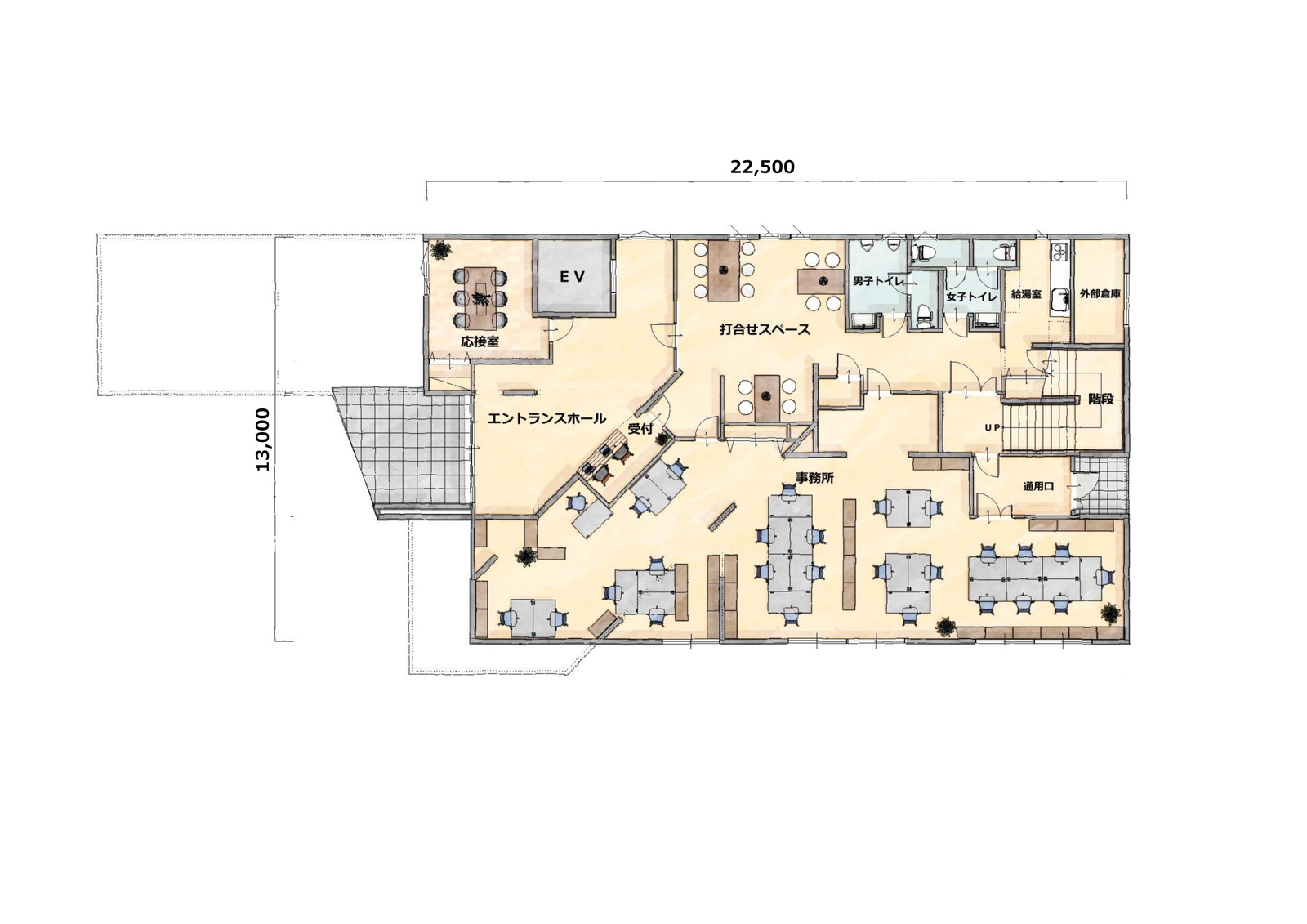
《1階平面図》
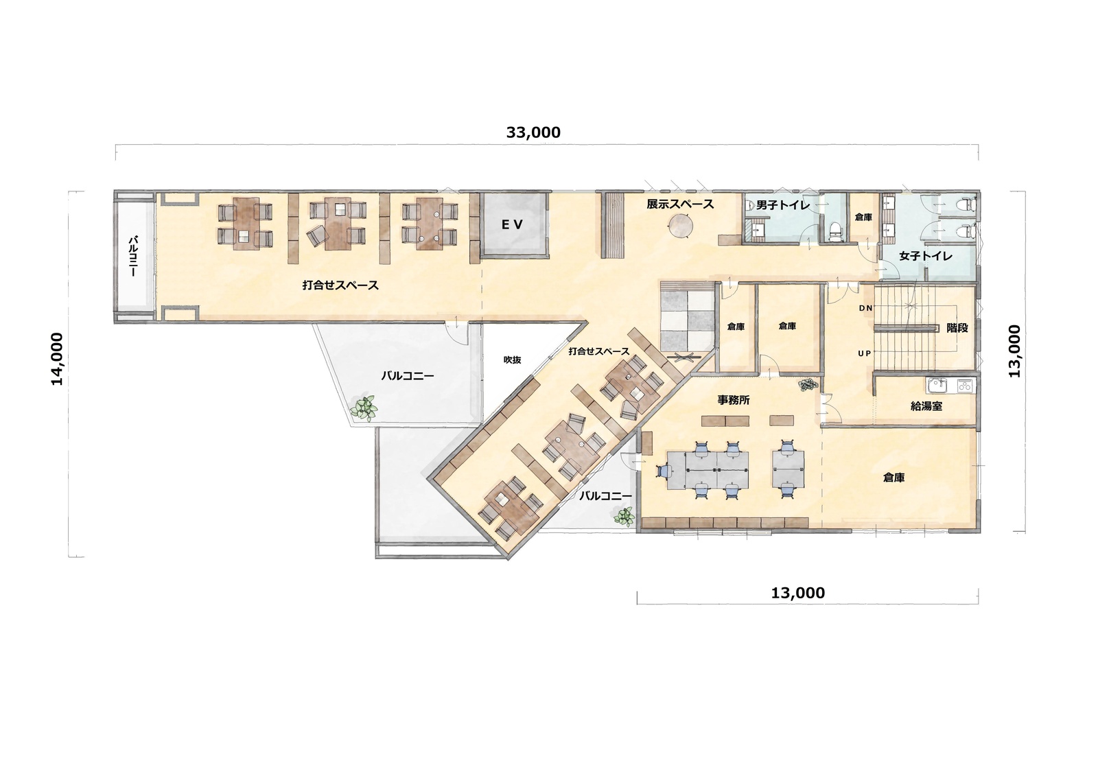
《2階平面図》
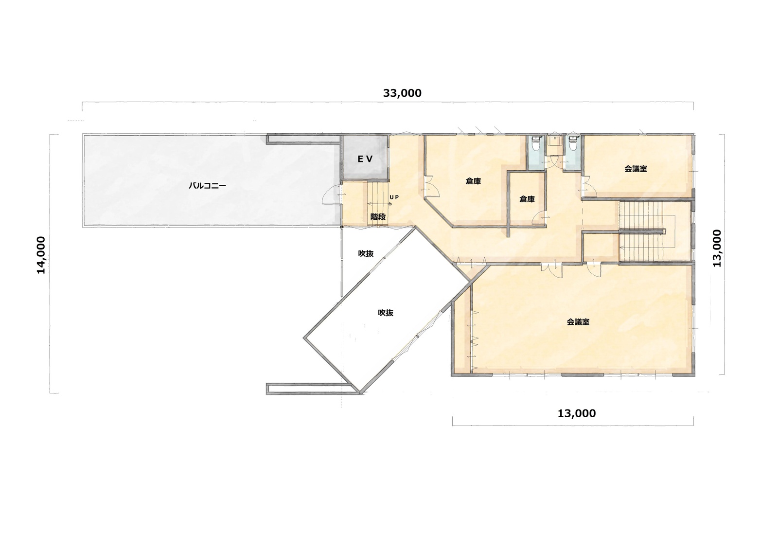
《3階平面図》
【物件概要】
工事名称 :ライフデザイン・カバヤ株式会社 福山支店 新築工事
所在地 :広島県福山市南蔵王町六丁目5番1・2
設計・施工会社:ライフデザイン・カバヤ株式会社
敷地面積 :996.57m2 (301.46坪)
延床面積 :786.91m2 (238.04坪)
規模・構造 :CLT鉄骨ハイブリッド構法 3階建て
着工 :2017年10月23日
竣工 :2018年3月(予定)
【CLTの新たな可能性を探って】
《ライフデザイン・カバヤのCLT建築》
ライフデザイン・カバヤは、 ヨーロッパで既に30年以上の歴史があるCLT建築の日本普及を目指している。 これまでの取り組みとして、 CLT×在来構法(自社住宅展示場:倉敷市西中新田)、 CLT×木造ハイブリッド(自社事務所ビル:倉敷市西中新田)、 オリジナルCLT構法(戸建分譲:倉敷市平田)を建築。 こうした取り組みにより施工性の良さ、 快適性といった実証データの収集、 記録を蓄積している。
【木でつくる建物の未来】
《ライフデザイン・カバヤ過去物件建て方風景》
※建て方の動画はこちら
『木でつくる建物の未来』を合言葉に活動するライフデザイン・カバヤのCLT事業及び木造建築への積極的な取り組みは、 循環型社会の形成や地球環境への貢献を狙ったものでもある。 木材におけるライフサイクルアセスメント(LCA)(注2)は、 コンクリートや鉄に比べ製造する際のエネルギー量が少なく、 CO2の発生も抑えられる。
(注2:ライフサイクルアセスメント(LCA)…(建築材料の製造時から解体されるまでに発生するCO2の総量)/(建物の寿命)によって、 建物に費やす一年あたりのCO2発生量を評価する方法。 )
また、 木は成長する過程で空気中のCO2を固定することができ、 そのまま伐採され廃棄・燃料となるまでCO2を貯蔵する。 そのため、 成長しCO2吸収率が低下した成木を伐採し、 建築材として活用することは、 林業の活性化のみならず、 植林を促し、 循環型社会の形成につながっていく。 このように、 木造建築物は年々ニーズが高まっており、 これを受けて国・行政も補助金等の整備を推し進めている。
《ライフデザイン・カバヤ株式会社 自社賃貸物件 完成イメージパース》
ライフデザイン・カバヤでは、 今後も自社賃貸物件が来年2月に着工予定であり、 同4月に建て方を予定している。 また、 構造も『オリジナルCLTコア構法』を採用しており、 見どころは上層階にいくにしたがって徐々にせり出しが多くなる逆階段状の外観。 さらに自社事務所ビル一棟、 戸建て住宅一棟、 3階建て自社賃貸物件一棟の建設も決まっている。
【ライフデザイン・カバヤの今後】
ライフデザイン・カバヤの新築住宅部門はエリア拡大戦略を推し進めており、 来年には四国高松にも進出する予定だ。 2016年度には広島県福山・井笠エリアにおいて、 注文住宅着工棟数第一位(住宅産研究所調べ)となっており、 2017年の経営計画では売り上げ180億円、 740棟を目指している。 ライフデザイン・カバヤは今年の4月に社名変更しており、 2017年から『中長期経営計画』がスタート。 2025年までを3つの期と捉え、 売り上げ目標を300億円としている。 その計画の前哨として『社名変更』があり、 新築部門の『エリア拡大』戦略となっている。
現在、 ライフデザイン・カバヤは保有している20棟の住宅展示場のうち、 広島県に6棟の住宅展示場を保有している。 今回着工の『福山支店』は広島県にある『広島テレビ住宅宣言ふくやま展示場』『フレスポ神辺展示場』『尾道住宅展示場』『東広島ハウジングフェア展示場』『カバヤホーム福山中央店』『カバヤホーム福山みどりまち店』を総括する役割を持たせ、 広島県東部エリアの新築販売棟数強化を図る考えだ。 今回着工の福山支店は、 その足掛かりとなっている。
《広島テレビ住宅宣言ふくやま展示場》
《フレスポ神辺展示場》
《尾道住宅展示場》
《東広島ハウジングフェア展示場》
《カバヤホーム福山中央店》
《カバヤホーム福山みどりまち店》
▽ライフデザイン・カバヤ株式会社 http://lifedesign-kabaya.co.jp/
岡山の住宅メーカー。 岡山県内や福山市、 東広島市で新築注文住宅、 分譲地宅地(土地)開発やリフォーム、 賃貸住宅経営までライフデザインをトータルにサポートしている。
目黒の賃貸管理会社 ベクエムハウス マルニー
東京都品川区上大崎3-10-44
TEL.03-6277-3041(代表) FAX.03-3445-2381























