株式会社エービーシー商会
アクリル系人工大理石と二段形状が生む高級感と機能性~化粧棚付き一体成形洗面カウンター~
4月3日(月)新発売
建材の開発、 製造、 輸入、 販売を行う(株)エービーシー商会(本社:東京都千代田区、 社長:佐村 健)は、 公共スペース向けにアクリル系人工大理石製の化粧棚付き一体成形洗面カウンター「SteetDuo(スティートデュオ)」を2017年4月3日(月)に発売します。
当製品は壁付水栓を採用し、 鏡の前に水濡れしにくいスペースを確保した二段式の洗面カウンターです。
上段の化粧棚は水栓よりも高い位置にあり水濡れしにくいため、 化粧ポーチなどを置いて身支度をすることが可能です。
そのため別にパウダーコーナーを設ける必要がなく、 空間の省スペースを可能にします。 また壁面に水栓部を内蔵することで奥行きが小さく、 狭いスペースにも対応します。
使用素材であるアクリル系人工大理石デュポン™コーリアン(R)は加工性にすぐれています。
当製品はその特長を活かし、 既製品でありながらポリエステル系の人工大理石では不可能だった、 カウンター間口やボウル間隔の調整を可能にしました。
そのため新築に限らず、 スペースの限られた改修の現場にも適応可能です。
二段形状のカウンターは継ぎ目なく一体成形されており、 なめらかな表面は汚れが溜まりにくいため、 衛生的で日々のメンテナンスも容易です。
ボウルサイズはスペースや用途にあわせてS、 M、 Lの3種類から選択でき、 手前側のフチ形状も3種類のデザインから選択可能です。
カウンター天板のカラーは、 弊社限定色を含む72色から空間のイメージに合わせて選定できます。
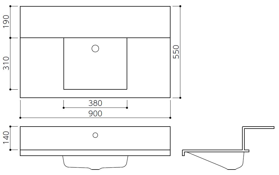
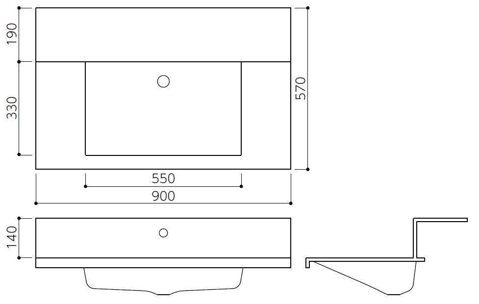
【製品図】
スティートデュオ-S
スティートデュオ-M
スティートデュオ-L
【フチ形状】
BT-1
水返しを付けずシャープで一体感のあるデザインタイプ
BT-2
やわらかなR面の水返しのあるデザインタイプ
スティートデュオ-L
カウンターの形状を生かしたシンプルなデザインタイプ
【ボウルサイズ】
S:W380×D310
M:W500×D310
L:W550×D330
【特長】
●カウンター間口、 ボウルの間隔を調整可能
●継ぎ目のない一体成形で衛生的かつメンテナンスが容易
●直線的な傾斜のシャープな角形ボウル
●ボウル手前のフチ形状を3種類から選択可能
【主な適応場所】
オフィスビル・商業施設などの公共スペース
【材料設計価格】
¥160,000~(カウンター本体のみ)
※水栓金具等は別途
<お客様のお問い合わせ先>
デュポン™コーリアン(R)事業部
TEL:0120-805-314
このリリースはABCオフィシャルサイト「ニュースリリース」に掲載しています。
https://prtimes.jp/a/?f=d16820-20170324-8763.pdf
株式会社エービーシー商会
www.abc-t.co.jp
東京都千代田区永田町2-12-14
目黒の賃貸管理会社 ベクエムハウス マルニー
東京都品川区上大崎3-10-44
TEL.03-6277-3041(代表) FAX.03-3445-2381











